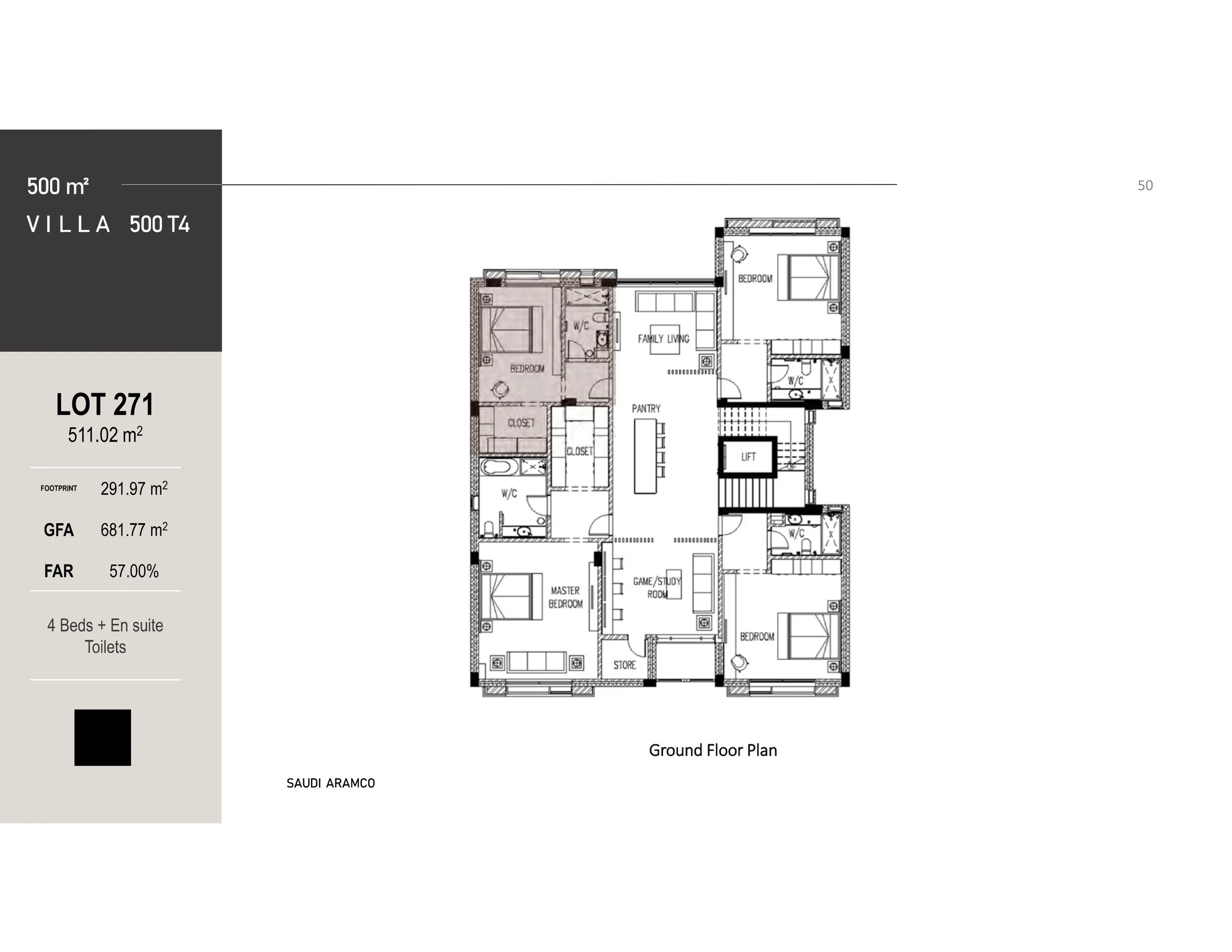
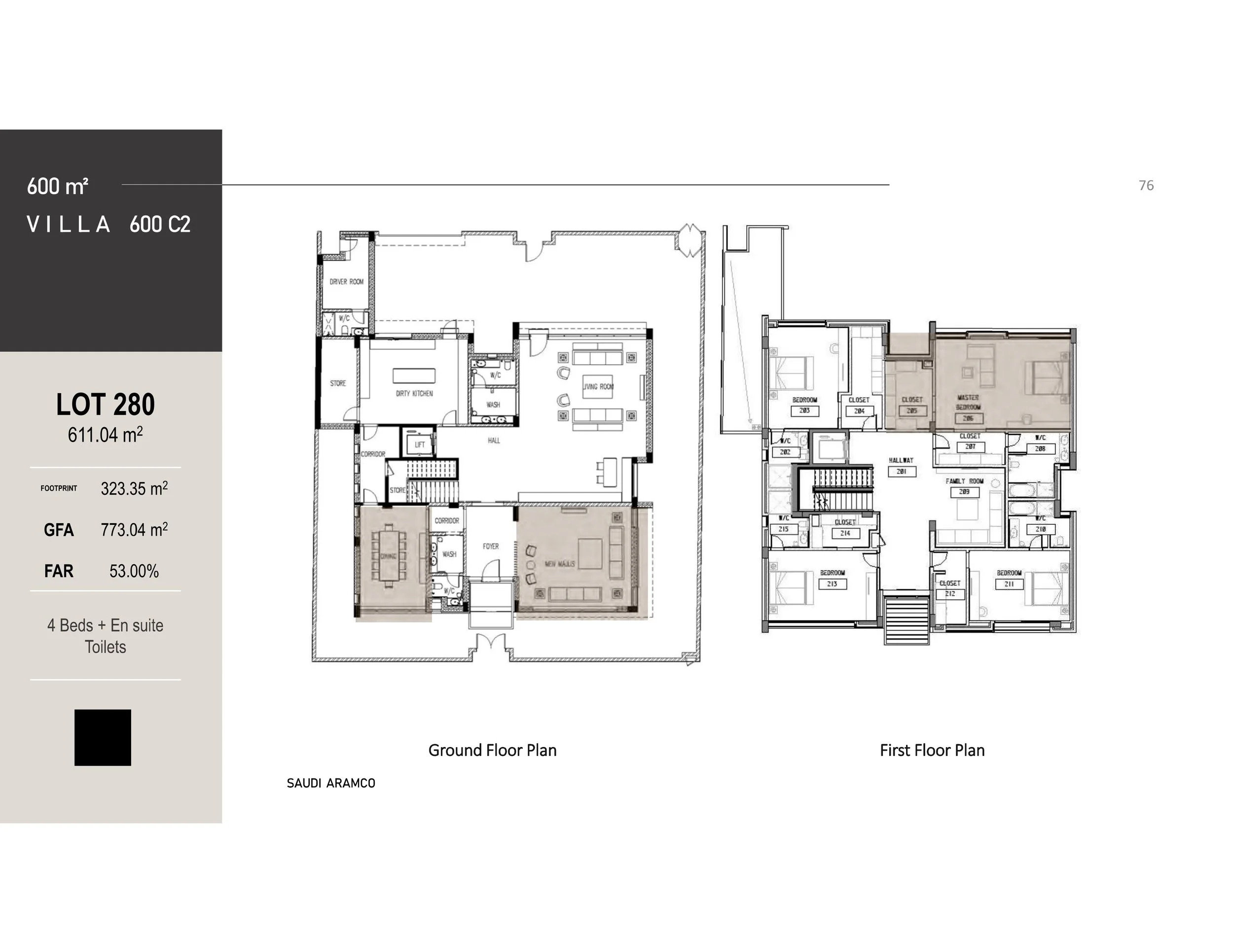
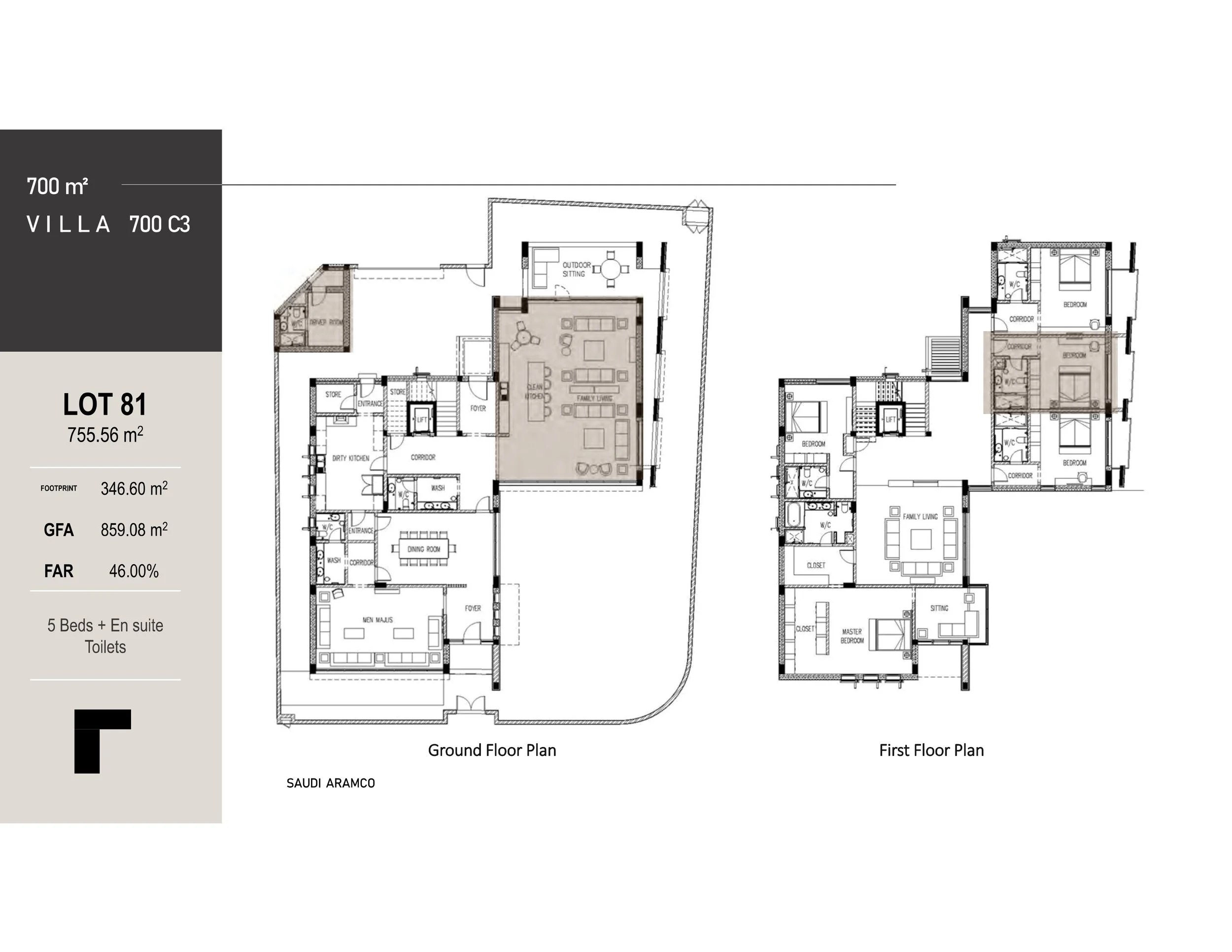
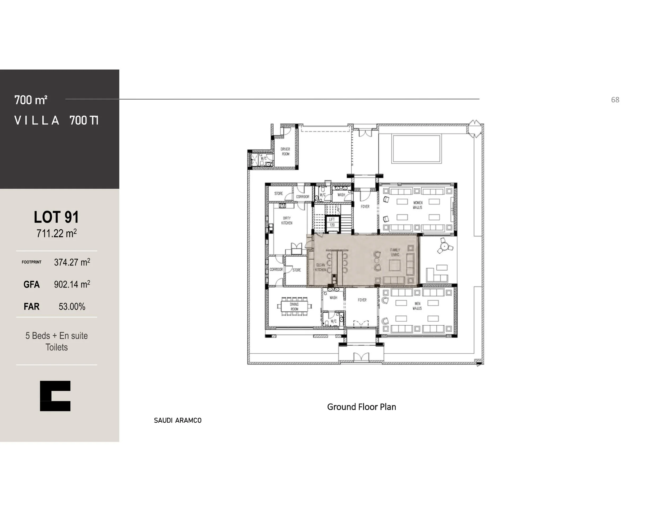
“We're working to increase access to affordable energy, reduce CO2 emissions, create next-generation materials that make consumer products lighter and stronger, and conserve water resources” —Saudi Aramco