“A man who works with his hands is a laborer; a man who works with his hands and his brain is a craftsman; but a man who works with hands and his brain and his heart is an artist” —Louis Nizer.
This graduation project was inspired by the shortage of crafty workshops for Saudis, men and women. This institute has all kinds of workshops needed for crafty artists and digital designers too. The design, inspired by the game Tetris, cam be seen in the 3D renders.
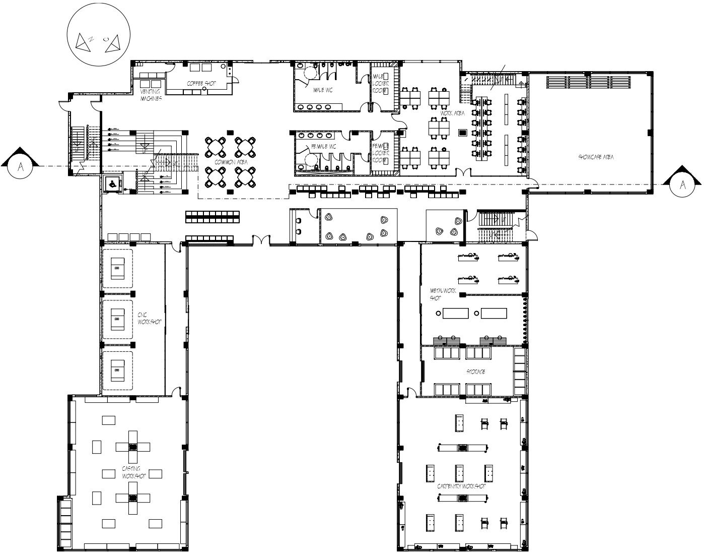
Institute Ground Floor Plan
Institute First Floor Plan
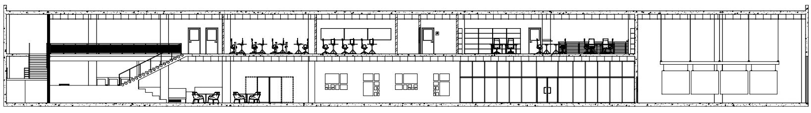
Institute Full Section
Detailed Unit Blow Up Plan and Section
Wood Workshop
Wood Workshop
Common Area
Common Area
Common Area
Common Area
Work/Study Area
Work/Study Area
Work/Study Area (Seats Close-Up)
Classroom
Classroom

