“A room without books is like a body without a soul” — Cicero.
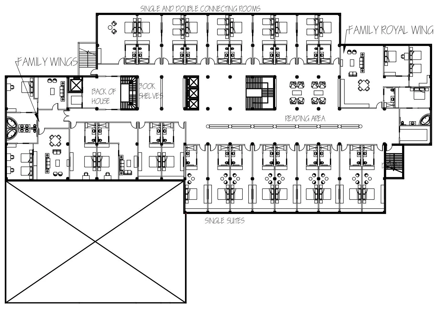
Inspired by the anatomy of books, this hotel was designed with the straight lines of books and the curve it creates when opened and flipped through. The hotel was designed for the guests to feel like they are inside the book itself, physically speaking. The Neoclassical style gives the feeling of comfort and inspiration, which would help readers, writers, and even students to keep focus on their tasks.

