“As we look ahead into the next century, leaders will be those who empower others” —Bill Gates
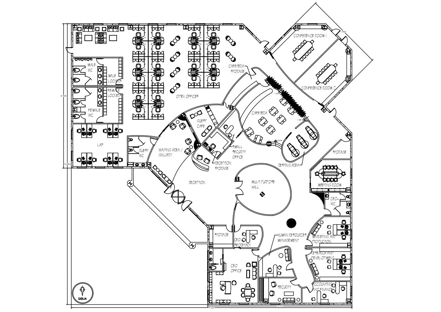
This Project was a Microsoft office building, the interior design is inspired by Astrology and star signs. The four types of star signs are inspired and linked with the four colors of the Microsoft logo; Yellow, Green, Blue, and Red. Each color and, in this case, star sign type resembles a type of program that Microsoft has. Each function is assigned to a specific star sign based on the characteristics of the star signs.

